ZAČÍNÁME! Nebojte se přidat nabídku nebo poptávku a buďte mezi prvními. Sdílejte nás prosím, pomůžete nám růst! Přidat inzerát
Zpět na seznam
Pronájem Komerční

Pronájem prostoru pro dílnu / sklad 362 m2

Boleslavská, Brandýs nad Labem-Stará Boleslav 250 01 (Stará Boleslav)

Nájemné

55 000 Kč / měsíc
152 Kč/m²

Parametry nemovitosti

Plocha
362 m²
Stav
Velmi dobrý
Vybavení
Nevybaveno
Vlastnictví
Osobní
Vytápění
Lokální plynové
Dostupné od
01. 04. 2026
Typ prostoru
Výrobní prostor
MHD
5 min pěšky
Umístění
okraj města
Číslo inzerátu
7ffa05b0

Co tato nemovitost nabízí?

Výtah Parkování

Popis nemovitosti

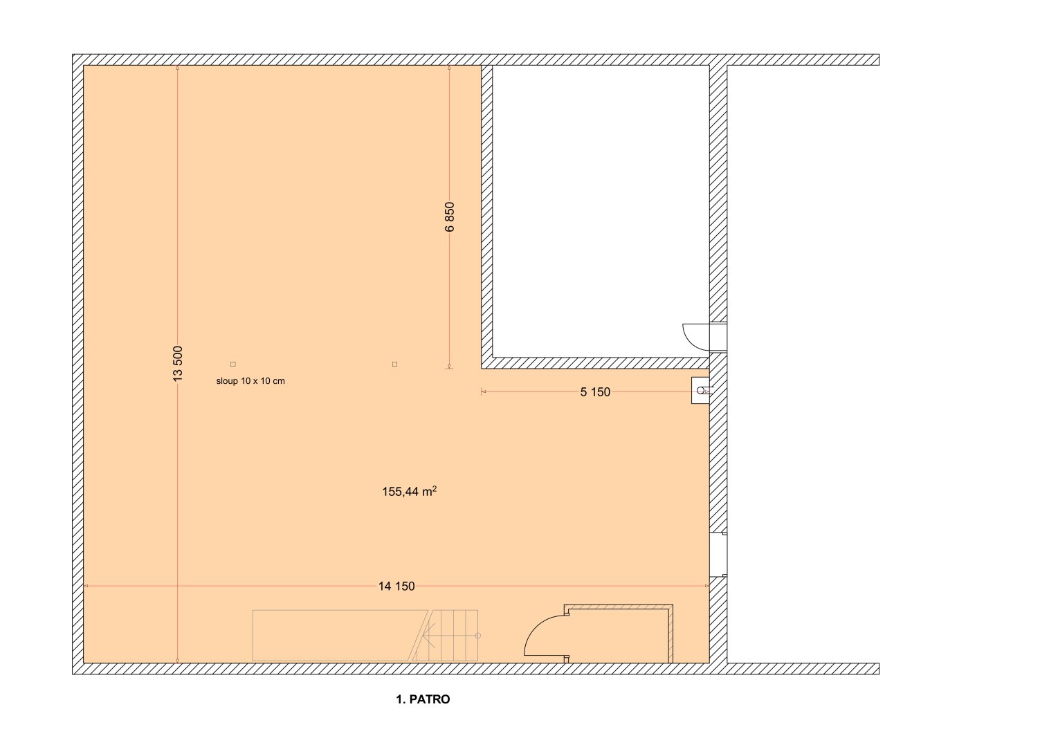
Prostory pro sklad nebo dílnu. Přímo u dálnice D10 k pronájmu podle potřeby a dohody. Čistá vytápěná plocha, výška přízemí 4 m. Výška v patře - šikmý strop od 2,4 m do 5 m. Do patra kovové schodiště a průmyslový výtah. Příkon 400V / 40A. Přípojky elektro možno upravit po dohodě. Sociální zázemí k dispozici. Vratná kauce po dohodě podle výpovědní lhůty (za 1 měsíc výpovědní lhůty = částka měsíčního nájmu). K dispozici podle dohody. 


K dispozici:


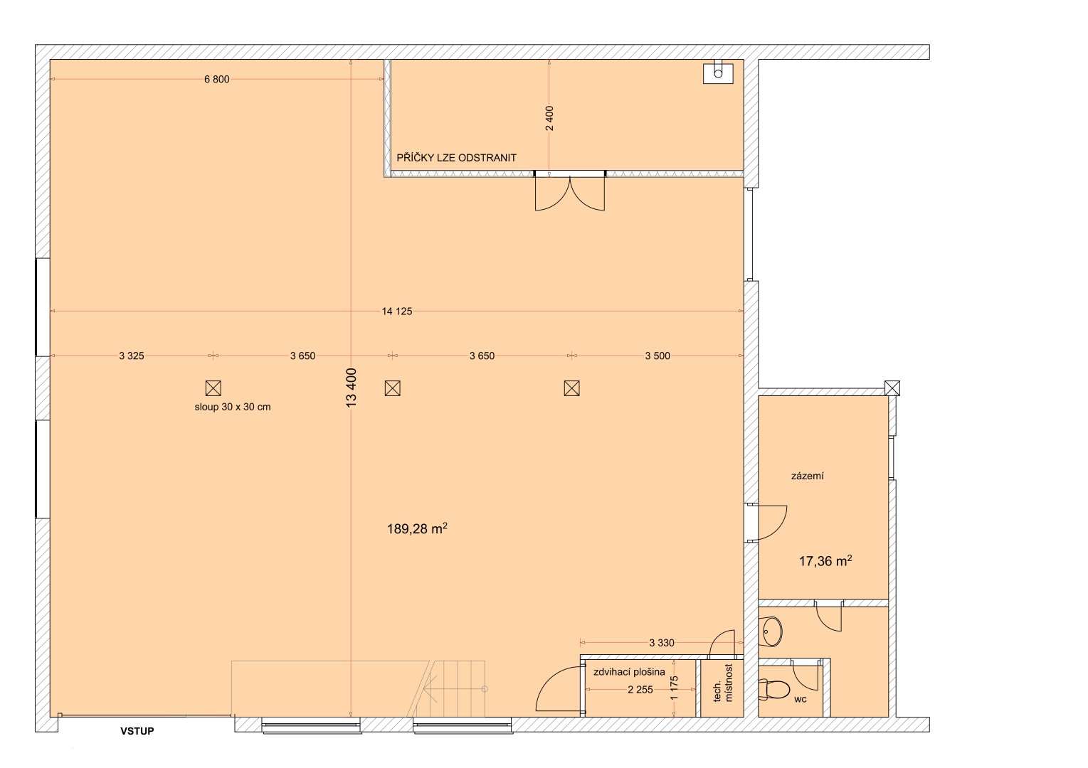
1) Prostor v přízemí 206,5 m2 s přístupem k sociálnímu zázemí. Z přízemí vede schodiště do 1. parta. Součástí je průmyslový výtah/plošina do 1. patra. Vstup vraty.

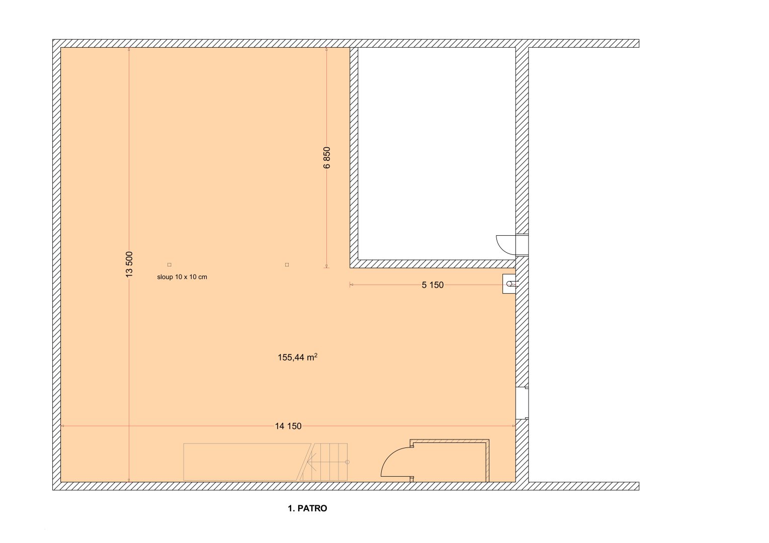
2) Prostor v 1. patře 155,5 m2. 


Cena nebytového prostoru celkem 55 000,- (152,- měsíčně za m2). V případě plátce DPH +21%.

Poloha nemovitosti

Načítání polohy...

Kontaktovat inzerenta

M
Miroslav Slavíček
Inzerent

Pro zobrazení kontaktu se přihlaste

Přihlásit se
Přidáno: 13.02.2026
ID: 7ffa05b0

Podobné nemovitosti

Související nemovitosti